3 1

3 bed Detached Bungalow - For Sale
St Leonards, Ringwood, Hampshire
Offers In Excess Of £500,000 (Freehold)

  • Immaculately presented detached chalet bungalow
  • 3 Double bedrooms
  • Spacious kitchen/diner with doors out onto the South/West facing garden
  • Principle suit with en-suite and walk in wardrobe.
  • Driveway parking for multiple vehicles
  • Located on the sought-after Woolsbridge Road
Presenting this stunning detached modern chalet bungalow located in the sought-after area of St Leonards, Ringwood.

Upon entering the property, you are greeted by a spacious hallway providing access to all principle rooms, including a bright sitting room with a bay window and glazed double doors leading to the kitchen/diner. The kitchen boasts high-quality finishes such as quartz worktops, integrated appliances, and generous storage space. There is also ample room for a 6 seater dining table. French doors lead out onto the garden.

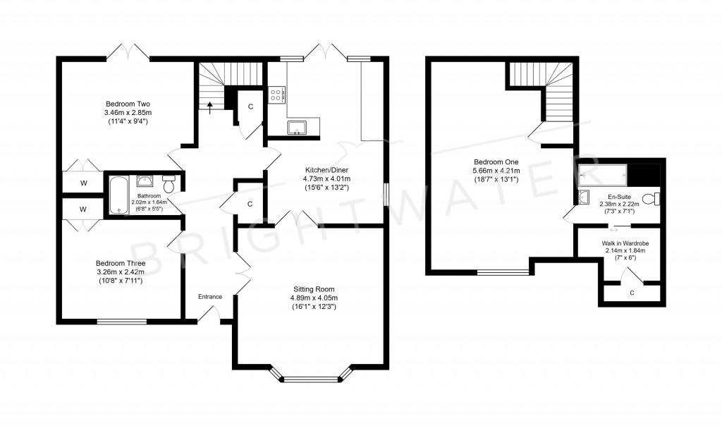
SITTING ROOM
4.89m x 4.05m (16'1" x 123")

KITCHEN/DINER
4.37m x 4.01m (15'6" x 12'3")

The ground floor features two double bedrooms, both with built-in wardrobes and the second has French doors leading out onto the garden, and a family bathroom complete with a bath, shower, toilet, washbasin, and vanity unit.

Moving to the first floor, you will find the main bedroom with an ensuite shower room, walk-in wardrobe, a window seat which is a lovely feature and additional eaves storage.

BEDROOM ONE
5.66m x 4.21m (18'7" x 13'1")

EN-SUITE
2.38m x 2.22m (7'3" x 7'1")

WALK IN WARDROBE
2.14m x 1.94m (7" x 6")

BEDROOM TWO
3.46m x 2.95m (11'4" x 9'4")

BEDROOM THREE
3.26m x 2.42m (10'8" x 7'1")

BATHROOM
2.20m x 1.64m (6'8" x 5'5")

Outside, the property benefits from driveway parking for multiple vehicles and a south-westerly facing garden with a patio and a lawn area. The property is set back from the main road, offering privacy and tranquillity.

Situated in St Leonards, Ringwood, this property boasts easy access to the A31, providing excellent transport links to Ringwood and Ferndown. Nearby, you will find a range of amenities, schools, and green spaces, making it the perfect location for families and professionals alike.

This exceptional chalet bungalow is in excellent condition and ready for a new owner to move in and make it their own. Don't miss out on the opportunity to view this beautiful property - schedule a viewing today.

Floorplans For St Leonards, Ringwood, Hampshire
EPC For St Leonards, Ringwood, Hampshire
Arrange a viewing for St Leonards, Ringwood, Hampshire

For further details on this property please call us on:
01425 478719

Arrange Viewing

Material Information

  • Local Authority: Dorset Council
  • Council Tax Band: E
  • Tenure: Freehold
  • Electricity: Mains Supply
  • Water: Mains Supply
  • Sewerage: Mains Supply
  • Heating: Gas Central
  • All Others: Ask Agent

Share this property