2 1

2 bed Detached Flat - Under Offer
Ringwood, Hampshire
Asking Price £189,950 (Leasehold)

  • Ground floor 2 bedroom apartment
  • Redecorated throughout
  • New carpets throughout
  • Purpose built block
  • Walking distance to the town centre
  • Rental potential £1000 Yield 6.15%
  • Vacant Possession
  • NO ONWARD CHAIN
**PRICE REDUCTION** Situated in the heart of Ringwood, this ground floor purpose-built apartment offers a fantastic opportunity for buyers seeking a modern and conveniently located property.

Ideal for first time buyers or investors.
Rental potential of £1000pcm securing a yield of 6.31%.

VACANT POSSESSION NO ONWARD CHAIN

Boasting two double bedrooms, the apartment is presented with vacant possession and no onward chain, making it an ideal choice for those looking to move swiftly.

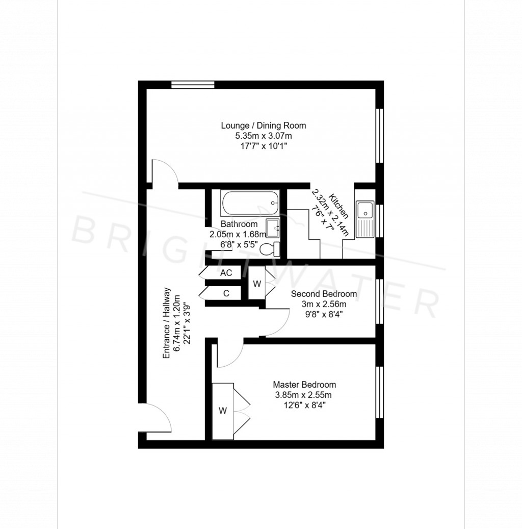
LIVING ROOM
5.35m x 3.07m (17'7" x 10'1")

KITCHEN
2.32m x 2.14m (7'6" x 7")

Upon entering the property, you are greeted with newly laid grey carpets and redecorated neutral tones throughout, creating a light and airy atmosphere. The spacious living room features ample space for a dining table and benefits from a double aspect, allowing for plenty of natural light to flood in. An archway leads through to the well-equipped kitchen, which offers a range of floor and wall units, as well as space for essential appliances such as a cooker, hob, tall fridge freezer, and washing machine.

BATHROOM
2.05m x 1.68m (6'8" x 5'5")

BEDROOM ONE
3.85m x 2.55m (12'6" x 8'4")

BEDROOM TWO
3m x 2.56m (9'8" x 8'4")

The accommodation also comprises a modern bathroom with a white suite, fully tiled walls, a shower above the bath, and a screen for added convenience. Both bedrooms are generously sized and include built-in wardrobes, providing ample storage solutions. Additional features of the property include a hallway storage cupboard, an airing cupboard housing the water tank, and communal gardens with a drying area for residents to enjoy.

In terms of location, the apartment benefits from being within walking distance of Ringwood town centre, where residents can find a variety of shops, restaurants, and amenities. With a communal front door featuring an entry phone system for added security, residents can also benefit from the use of an allocated parking space and visitor parking for convenience.

Offered for sale in exceptional condition following recent redecoration and new carpets throughout, this property presents a fantastic opportunity for prospective buyers to secure a modern and well-presented home in a sought-after location. Don't miss out - contact us today to arrange a viewing.

Ground Rent is a Peppercorn,
Lease is for 125 years from 1July 1994,
Service Charge Reserve Funds is £951.86 pa
Maintenance Charge Reserve Funds is £654.69pa

Floorplans For Ringwood, Hampshire
EPC For Ringwood, Hampshire
Arrange a viewing for Ringwood, Hampshire

For further details on this property please call us on:
01425 478719

Arrange Viewing

Material Information

  • Local Authority: New Forest District Council
  • Council Tax Band: B
  • Tenure: Leasehold
  • Electricity: Mains Supply
  • Water: Mains Supply
  • Sewerage: Mains Supply
  • All Others: Ask Agent

Share this property