3 1

3 bed Detached Bungalow - For Sale
Verwood, Dorset
Asking Price £445,000 (Freehold)

  • NO ONWARD CHAIN
  • Detached 3 bedroom bungalow
  • Driveway parking for multiple vehicles
  • Garage and Carport
  • Beautiful back and front gardens
  • 3 Bedrooms
  • Conservatory
  • Wood burner in sitting room
  • Summer house/ home office
Chain free, this spacious detached three bedroom bungalow is situated in a peaceful Cul de sac in the desirable location of Verwood. Boasting a large gated driveway with ample space for multiple vehicles, including a caravan or motorhome, as well as additional parking in the garage and carport, this property offers plenty of convenience for any homeowner.

Step through the gate into the beautifully maintained garden, complete with a range of flower beds, a greenhouse, shed, and a summer house which can also double as a garden office room, complete with water, drainage, and power supply.

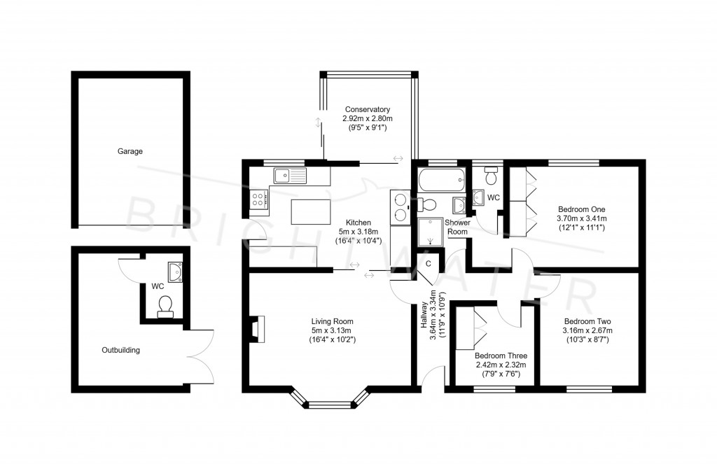
LIVING ROOM
5m x 3.13m (16'4" x 10'2")

KITCHEN
5m x 3.18m (16'4" x 10'4")

CONSERVATORY
2.92m x 2.80m (9'5" x 9'1")

Inside, the property is all electric with the heating consisting of thermostatically controlled electric radiators however there is a gas feed to the property if required.
Spacious living room with bay window and wood burner, a conservatory with thermal blinds and access to a decked area, and a well-equipped kitchen with an electric oven and hob, breakfast bar/island, and space for appliances.

BEDROOM ONE
3.70m x 3.41m (12'1" x 11'1")

BEDROOM TWO
3.70m x 3.41m (12'1" x 11'1")

BEDROOM THREE
2.42m x 2.32m (7'9" x 7'6")

The main bedroom is a spacious double with access to a WC, while the second bedroom is also a double with a front aspect, and the third bedroom includes a built-in wardrobe and storage.

BATHROOM
3.23m x 1.66m (10'5" x 5'4")

The modern bathroom boasts both a bath and separate double shower cubicle, perfect for relaxation and convenience. Additionally, driveway parking for multiple vehicles further enhances the appeal of this property.

Located in the sought-after area of Verwood, residents can enjoy the tranquil surroundings while still being within easy reach of local amenities, schools, and transport links. Don't miss the opportunity to view this exceptional property - arrange a viewing today.

Floorplans For Verwood, Dorset
EPC For Verwood, Dorset
Arrange a viewing for Verwood, Dorset

For further details on this property please call us on:
01425 478719

Arrange Viewing

Material Information

  • Local Authority: Dorset Council
  • Council Tax Band: D
  • Tenure: Freehold
  • All Others: Ask Agent

Share this property