3 1

3 bed Detached House - For Sale
Verwood, Dorset
Asking Price £495,000 (Freehold)

  • 1st time on the open market for 50 years
  • Grade ll listed cottage
  • Thatched roof
  • .Originally built in the 18th century
  • Private driveway with parking for several vehicles
  • Generous wrap-around garden, providing plenty of outdoor space to enjoy.
  • No onward chain
Nestled in the heart of the Dorset countryside, Oak Tree Cottage is a charming Grade II listed home steeped in history and character. Originally built in the 18th century with traditional plastered cobb walls and a picturesque thatched roof, the property has been sympathetically extended and adapted over time, with significant additions made during the 1960s and 1980s.

Inside, the cottage retains many period features, including exposed beams and joists that add warmth and authenticity to the living spaces. The blend of original construction and later modifications creates a home that is both rich in heritage and adaptable for modern living.

Recognised by Historic England as Monument 44 in the Dorset Volume V, Oak Tree Cottage is not only a delightful home but also a piece of local history. Its character, charm, and timeless appeal make it a rare opportunity for buyers seeking something truly special.

The first time the property has been listed in 50 years.

The property is approached via a private driveway with parking for several vehicles, and is surrounded by a generous wrap- around garden, providing plenty of outdoor space to enjoy.

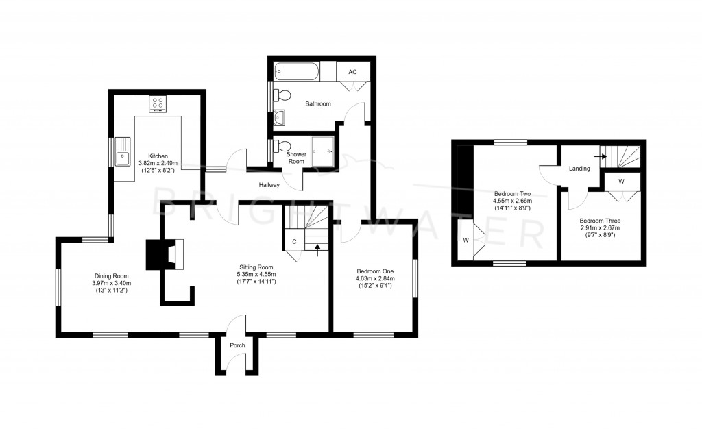
Ground Floor

SITTING ROOM
5.35m x 4.55m (17'7" x 14'11")

A welcoming porch leads directly into the sitting room, where original beams and a large feature fireplace create an inviting focal point. The room also benefits from underfloor heating, complemented by additional plug-in heaters, with useful understairs storage tucked neatly away.

DINING ROOM
3.97m x 3.40m (13" x 11'2")

KITCHEN
3.82m x 2.49m (12'6" x 8'2")

The dining room enjoys a new floor finish and an open fireplace, making it a versatile entertaining space. The kitchen/breakfast room is well-equipped with a range of modern wall and floor units, a double oven, gas hob with extractor, dishwasher, and space for both a washing machine and fridge/freezer.

BEDROOM ONE
4.63m x 2.84m (15'2" x 9'4")

A hallway provides access to the ground floor shower room with WC, the family bathroom (with shower over bath and heated towel rail), an airing cupboard, and the main bedroom.

First Floor

BEDROOM TWO
4.55m x 2.66m (14'11" x 8'9")

BEDROOM THREE
2.91m x 2.67m (9'7" x 8'9")

Stairs rise to the first floor where there are two further bedrooms, both benefiting from built-in storage.

Outside
The property is set within a large wrap-around garden, offering lawned areas, mature planting, and plenty of scope for outdoor relaxation and entertaining. A private driveway provides off-road parking for multiple vehicles.

Summary
Oak Tree Cottage is a unique opportunity to purchase a home of historic importance, blending 18th-century character with modern comforts. Its generous garden, period features, and flexible accommodation make it ideal as a family home.

NO ONWARD CHAIN.

Floorplans For Verwood, Dorset
Arrange a viewing for Verwood, Dorset

For further details on this property please call us on:
01425 478719

Arrange Viewing

Material Information

  • Local Authority: Dorset Council
  • Council Tax Band: C
  • Tenure: Freehold
  • All Others: Ask Agent

Share this property