Ogdens, Fordingbridge, Hampshire, 4 bedroom, Detached House
4 2

4 bed Detached House - To Let
Ogdens, Fordingbridge, Hampshire
£5,000pcm

  • Four Double Bedrooms
  • Newly Renovated
  • Open Plan Kitchen Dining Room with Integrated Appliances
  • Large Patio and Rear Garden
  • Equestrian Facilities and approximately 7 acres of land
  • Driveway Parking for Multiple Vehicles
BrightWater are delighted to introduce this stunning, recently renovated equestrian property in the desirable location of Ogdens, Hyde.

Occupying a prime position in a peaceful New Forest setting, Padiss Corner is a detached house believed to date from the 1930s. Located in the small hamlet of Ogdens, within the New Forest National Park and Western Escarpment Conservation Area, it enjoys one of the finest settings in the area, with the open forest literally at the gate—ideal for horse riding, walking, and cycling.

Upon entering you are greeted with the modern, open plan kitchen dining room with french doors looking out to the rear garden. The kitchen features floor to ceiling porcelain white units, an island and integrated kitchen appliances such as a Bosch fridge freezer, dishwasher a bin store and quooker tap. The kitchen leads through to the utility room, with space for a washing machine and tumble dryer.

The large sitting room features an AGA wood burner, perfect for cosy evenings. The downstairs also provides a cloakroom.

Upstairs the property features four double bedrooms. The main bedroom has a three-piece en-suite shower room.
Across the hall is a family bathroom, with shower over bath.

The garden extends along the south, east, and west sides of the house, featuring a spacious patio and predominantly laid to lawn, with numerous mature trees dotted throughout and encircling the area.

The property also benefits from equestrian facilities, including 5 stables, 60x20 arena and approximately 7 acres of grazing land.

The Tenant will only be responsible for paying the electricity and council tax, making running costs straightforward and manageable.

This property benefits from modern, energy-efficient features including underfloor heating throughout the ground floor, providing a warm and comfortable living space. The house is heated by an air source heat pump, ensuring efficient and sustainable heating all year round. Additionally, the property is served by its own septic tank, offering a reliable and low-maintenance waste management solution.

Nearby villages Hyde and Frogham offer a primary school, garden centre and shop, popular café The Potting Shed, a pub, and an equestrian centre. The towns of Fordingbridge (1.5 miles) and Ringwood (6 miles) provide a wider range of shops, health centres, leisure facilities, and both state and private schooling options.

For commuters, the A338 and A36 give easy access to Salisbury, Bournemouth, and Southampton. Salisbury and Southampton Parkway stations offer direct services to London Waterloo (90 and 71 minutes), and both cities have international airports.

Outdoor enthusiasts will appreciate the superb countryside on the doorstep, with Abbotswell, Hyde Common, Ogdens, and Hasley Enclosure nearby, as well as local golf, angling, and sailing opportunities, including at Blashford Lakes.

Don't miss out on the opportunity to make this wonderful property your new home!

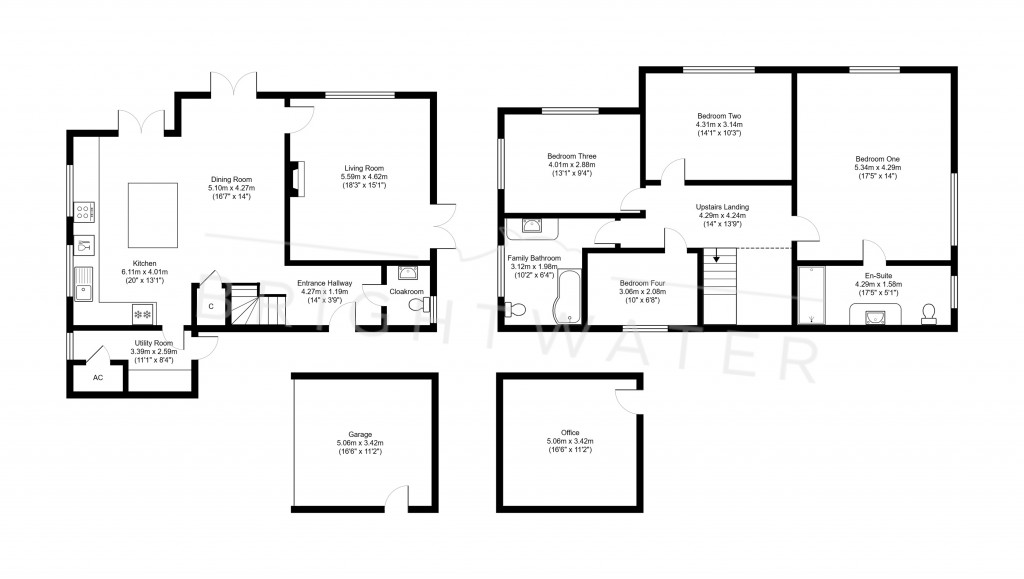
Floorplans For Ogdens, Fordingbridge, Hampshire
EPC For Ogdens, Fordingbridge, Hampshire
Arrange a viewing for Ogdens, Fordingbridge, Hampshire

For further details on this property please call us on:
01425 478719

Arrange Viewing

Material Information

  • Local Authority: New Forest District Council
  • Council Tax Band: G
  • Security Deposit: £5.00
  • Electricity: Mains Supply
  • Water: Mains Supply
  • Sewerage: Mains Supply
  • Heating: AirSourceHeatPump
  • All Others: Ask Agent

Share this property