Verwood, Dorset, 4 bedroom, Detached House
4 2

4 bed Detached House - For Sale
Verwood, Dorset
Asking Price £595,000 (Freehold)

  • Four-bedroom detached home in a quiet cul-de-sac
  • Spacious triple-aspect sitting room with log burner and French doors
  • Stunning kitchen/diner with quartz worktops and premium appliances
  • Cosy snug and separate office with fitted furniture
  • Principal suite with dressing area and en-suite
  • Modern family bathroom with freestanding bath and walk-in shower
  • Utility room and downstairs WC
  • Driveway parking for two vehicles and garage
  • Garden with bar, pond, and entertaining areas
  • Car charging point and gas central heating
Beautifully Presented Four-Bedroom Detached Home in a Quiet Verwood Cul-de-Sac

Nestled in a peaceful cul-de-sac, this beautifully presented four-bedroom detached home offers a wonderful blend of character, style, and practicality — perfect for family living and entertaining alike.

The property enjoys driveway parking for three vehicles, a car charging point, and garage, all set within an attractive and private plot.

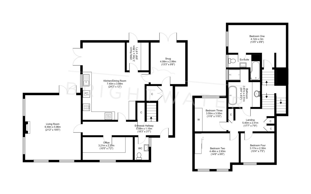
LIVING ROOM
6.49m x 5.96m (21'2" x 19'5")

Inside, the spacious triple-aspect sitting room is flooded with natural light, featuring a log burner, two large windows overlooking the rear garden, and French doors opening onto a private patio area — the ideal spot for relaxing or entertaining.

KITCHEN/DINING ROOM
7.40m x 3.68m (24'2" x 12")

At the heart of the home lies the impressive kitchen/dining room, boasting quartz worktops, porcelain tiled flooring, and exposed brickwork for a touch of rustic charm. The built-in dining bench provides clever storage, while premium fittings include a butlers sink, filtered and chilled boiling water tap, washing-up liquid and soap dispenser, Neff double oven and microwave, Neff warming plate, Siemens induction hob, Bosch dishwasher, fridge, freezer, double wine fridge, and a stylish bar area. The kitchen also benefits from a large larder cupboard. French doors lead directly out to the rear patio, creating seamless indoor-outdoor living.

SNUG
4.08m x 2.99m (13'3" x 9'8")

UTILITY ROOM
2.70m x 1.86m (8'8" x 6'1")

OFFICE
3.21m x 2.20m (10'5" x 7'2")

A cosy snug offers a second reception space with patio doors to the garden, while the office features fitted furniture and a glazed pane to the hallway for added light — perfect for working from home. A separate utility room with side access and a downstairs WC complete the ground floor.

Throughout the ground floor you’ll find beautiful solid wood flooring, with the snug benefitting from laminate for durability.

MAIN BEDROOM
4.12m x 3m (13'5" x 9'8")

Upstairs, there are two separate staircases, adding character and distinction to the layout. The principal bedroom is a bright double with a Velux window, eaves storage, dressing area, and a modern en-suite bathroom featuring a sunken bath, space-saving sink, and WC.

The second staircase leads to three further bedrooms and the family bathroom.

BEDROOM TWO
4.48m x 2.93m (14'6" x 9'6")

Bedroom Two is a spacious double with built-in wardrobes and a dressing table, enjoying a pleasant side aspect.

BEDROOM THREE
3.55m x 3.55m (11'6" x 11'6")

Bedroom Three, another generous double, overlooks the rear garden and features built-in wardrobes with curtain fronts.

BEDROOM FOUR
3.17m x 2.30m (10'4" x 7'5")

Bedroom Four is a small double, perfect as a child’s room, guest space, or study.

FAMILY BATHROOM
2.87m x 2.51m (9'4" x 8'2")

All are served by a modern family bathroom, finished to a superb standard with a freestanding bath, walk-in shower, and contemporary fittings.

A Velux window on the landing allows natural light to flood in, and two large storage cupboards provide excellent linen or household storage.

Throughout the first floor, newly fitted carpets create a soft and comfortable finish.

Additional benefits include gas central heating, two water tanks with a pump system, and newly fitted carpets throughout the stairs and first floor.

Outside, the rear garden is beautifully designed for entertaining and relaxation, featuring multiple patio areas, a bar, pond, wood store, and a well-kept vegetable garden.

Floorplans For Verwood, Dorset
Arrange a viewing for Verwood, Dorset

For further details on this property please call us on:
01425 478719

Arrange Viewing

Material Information

  • Local Authority: Dorset Council
  • Council Tax Band: E
  • Tenure: Freehold
  • All Others: Ask Agent

Share this property