4 1

4 bed House - For Sale
Castle Lane West, Bournemouth, BH8
In Excess of £425,000 (Freehold)

  • Located within walking distance of Castlepoint shopping centre
  • Driveway parking for multiple vehicles
  • Three floors of accommodation
  • Conservatory
  • Easy access to the A338 for links with Bournemouth and Southampton


BrightWater are delighted to present this charming four-bedroom detached family home, ideally located between Queens Park and Throop. Set over three floors, the property offers generous and versatile living accommodation, a south-facing garden, and driveway parking for multiple vehicles — all within walking distance of Castlepoint Shopping Centre and with easy access to the A338, connecting to Bournemouth town centre, Ringwood and Southampton.

The property would benefit from a programme of refurbishment, modernisation and updating throughout, offering purchasers a fantastic opportunity to create a home tailored to their own tastes and requirements. An ideal project for those looking to add value.

Set over three floors, this home offers versatile living accommodation and would make an ideal family residence.

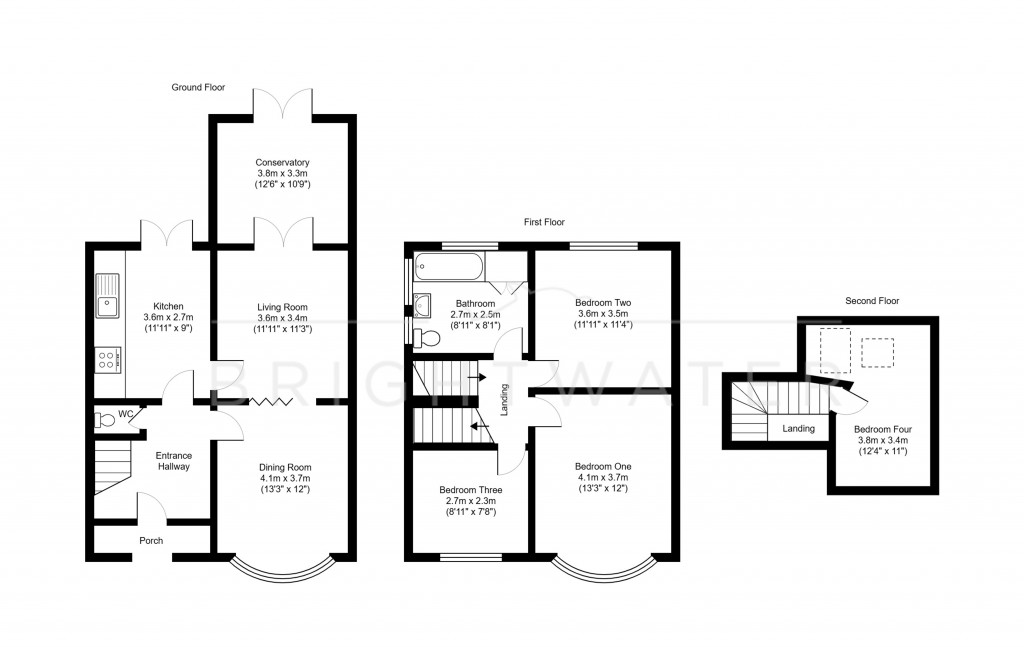
LIVING ROOM 3.6m x 3.4m (11'11" x 11'3")

DINING ROOM 4.1m x 3.7M (13'3" x 12")

Upon entering, you are welcomed by a charming entrance hallway featuring a character front door and understairs WC. The spacious lounge enjoys a feature fireplace with solid wooden surround and French doors opening into the conservatory. The lounge flows seamlessly into the dining room, which provides ample space for a large table and chairs — perfect for entertaining. Bi-folding doors allow the two rooms to be separated if desired.

CONSERVATORY 3.8m x 3.3m (12'6" x 10'9")

The conservatory is a delightful addition to the home, featuring exposed brickwork, a high-pitched roof, and Parquet flooring, with doors opening onto the south-facing rear garden.

KITCHEN 3.6m x 2.7m (11'11" x 9")

The kitchen/breakfast room is well-equipped with a range of wall and base units, space for a cooker with extractor over, washing machine, and tall fridge freezer. There’s also room for a breakfast table, and a door provides direct access to the rear garden.

BEDROOM ONE 4.1m x 3.7m (13'3" x 12")

BEDROOM TWO 3.6m x 3.5m (11'11" x 11'4")

BEDROOM THREE 2.7m x 2.3m (8'11" x 7'8")

BATHROOM 2.7m x 2.5m (8'11" x 8'1")

To the first floor, there are three good-sized bedrooms — two doubles and one single — along with a spacious family bathroom featuring a Victorian-style bath with shower above, pedestal wash hand basin, low-level WC, heated towel rail, and airing cupboard housing the Glow-worm boiler.

BEDROOM FOUR 3.8m x 3.4m (12'4" x 11")

The second floor offers a fourth bedroom with two Velux windows, making it an ideal guest room, teenager’s bedroom, or home office.

Throughout the property you’ll find laminate flooring in the lounge/diner and stripped wooden flooring across the first and second floors, adding to its period charm.

Externally, the home boasts a south-facing rear garden, ideal for relaxing and entertaining, and driveway parking for multiple vehicles.

This characterful home combines traditional features with flexible living space, all in a highly convenient location close to schools, local amenities, and major transport links.

Floorplans For Castle Lane West, Bournemouth, BH8
EPC For Castle Lane West, Bournemouth, BH8
Arrange a viewing for Castle Lane West, Bournemouth, BH8

For further details on this property please call us on:
01425 478719

Arrange Viewing

Material Information

  • Local Authority: BCP
  • Council Tax Band: D
  • Tenure: Freehold
  • Electricity: Mains_supply,
  • Water: 1
  • Sewerage: Mains_supply,
  • Heating: Gas_central
  • Parking: driveway,
    • Spaces: 3
  • All Others: Ask Agent

Share this property