3 1

3 bed House - Sold STC
Burnbake Road, Verwood, BH31
£415,000 (Freehold)

  • **NO ONWARD CHAIN**
  • Detached Family Home
  • Attached Single Garage
  • Front and Rear Gardens
  • Driveway for Multiple Vehicles
  • Ground Floor Cloakroom
  • UPVC Double Glazed Conservatory
  • 18ft Lounge
A charming detached house in the sought-after location of Verwood is now available. This family home boasts 2 spacious double bedrooms and 1 single...

A charming detached house in the sought-after location of Verwood is now available. This family home boasts 2 spacious double bedrooms and 1 single bedroom, along with a modern bathroom.

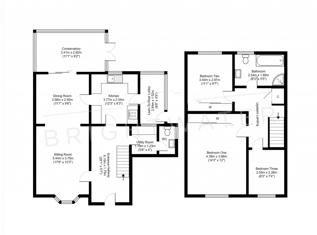
ENTRANCE HALL

6.15m x 1.75m

(20'1" x 5'7")

Upon entering the property, you will find a welcoming entrance hall with stairs leading to the first floor and a useful understairs recess.

LIVING ROOM

5.44m x 3.75m

(17'8" x 12'3")

DINNG ROOM

3.58m x 2.95m

(11'7" x 9'6")

CONSERVATORY

3.41m x 2.82m

(11'1" x 9'2")

Bright and spacious lounge with a feature brick fireplace. The lounge flows seamlessly into the dining room, which offers access to the Edwardian style conservatory via sliding doors. with French doors to the rear garden

KITCHEN

3.77m x 2.54m

(12'3" x 8'3")

The fitted kitchen features a range of floor and wall units, roll edge work surface , space for under counter fridge, free standing cooker and concealed extractor hood above, perfect for all your culinary needs while a lean-to rear lobby provides additional storage space.

UTILITY ROOM

1.79m x 1.23m

(5'8" x 4")

Additionally, there is a utility room with space and plumbing under worksurface for washing machine and dishwasher and a convenient cloakroom on the ground floor.

BEDROOM ONE

4.38m x 3.68m

(14'3" x 12")

BEDROOM TWO

3.40m x 2.97m

(11'1" x 9'7")

BEDROOM THREE

2.55m x 2.26m

(8'3" x 7'4")

On the first floor, the main bedroom is fitted with a range of built in triple wardrobes comprising 3 mirrored fronted sliding doors, hanging and shelving space and a front aspect, while the second bedroom offers built-in wardrobes and overlooks the rear of the property. The third bedroom is a cosy single room, ideal for children or guests.

BATHROOM

2.54m x 1.69m

(8'3" x 5'5")

The modern family bathroom features a double shower cubical and a separate bath with a shower attachment.

Outside, the property benefits from a driveway for 2 cars and a single garage, providing ample parking space. The rear garden includes a paved patio area, large lawn, a brick built barbecue, and a garden shed.

Situated within walking distance to Morrisons supermarket, the village doctors surgery, a local public house, and a popular fish and chip shop, this property offers convenience and accessibility to everyday amenities.

Don't miss the opportunity to view this fantastic property in person. Contact us to arrange a viewing today.

Floorplans For Burnbake Road, Verwood, BH31
EPC For Burnbake Road, Verwood, BH31
Arrange a viewing for Burnbake Road, Verwood, BH31

For further details on this property please call us on:
01425 478719

Arrange Viewing

Material Information

  • Local Authority: Dorset
  • Council Tax Band: E
  • Tenure: Freehold
  • Parking: garage,driveway,
    • Spaces: 2
  • All Others: Ask Agent

Share this property