2 1

2 bed Flat - To Let
West Cliff Road, Bournemouth, BH2
£1,475pcm

  • 2 Double bedrooms with sea view
  • Open plan living/ dining area
  • Walking distance to beach
  • Allocated underground parking space
  • Private balcony with sea view
  • Lift access with concierge service


A well-presented and spacious two double bedroom flat/maisonette, ideally situated close to Bournemouth town centre and within easy walking distance of the beach.

The property benefits from lift access, offering convenience and ease. Internally, the accommodation is light and airy throughout, featuring an open plan living and dining area that provides a great space for both relaxing and entertaining. The kitchen is well-equipped with an electric hob and washing machine.

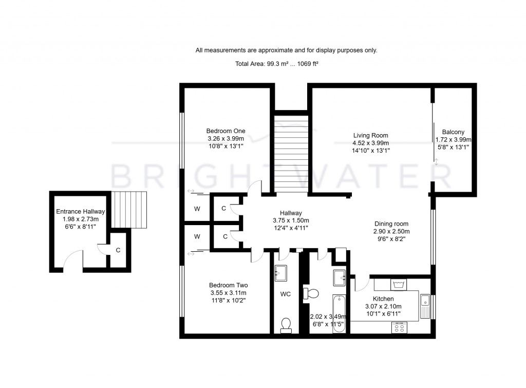
LIVING ROOM- 3.99m x 4.52m

DINING ROOM- 2.90m x 2.50m

KITCHEN- 3.07m x 2.10m

Both bedrooms are generous doubles and enjoy attractive sea views, while the property further benefits from a separate WC and a bathroom with shower over bath. There are also multiple storage cupboards throughout, adding to the practicality of the home.

BEDROOM ONE- 3.99m x 3.26m

BEDROOM TWO- 3.55m x 3.11m

WC- 1.9m x 0.8m

BATHROOM- 3.49m x 2.20m

A standout feature is the private balcony, offering lovely sea views – perfect for enjoying the coastal setting.

BALCONY- 3.99m x 1.72m

Additional benefits include a concierge service and one allocated underground parking space.

This fantastic property is ideal for those seeking a well-located coastal home with excellent amenities nearby.

Floorplans For West Cliff Road, Bournemouth, BH2
EPC For West Cliff Road, Bournemouth, BH2
Arrange a viewing for West Cliff Road, Bournemouth, BH2

For further details on this property please call us on:
01425 478719

Arrange Viewing

Material Information

  • Council Tax Band: D
  • All Others: Ask Agent

Share this property