2 2

2 bed Land (Residential) - For Sale
Warmwell Road, Crossways, DT2
Guide Price £185,000 (Freehold)

  • Planning Permission Granted
  • 0.17 acre (approx.) plot
  • Large 2/3 Bedroom Bungalow


An exciting opportunity to acquire a 0.17 acre plot in the village of Crossways, situated just 6 miles from Dorchester.

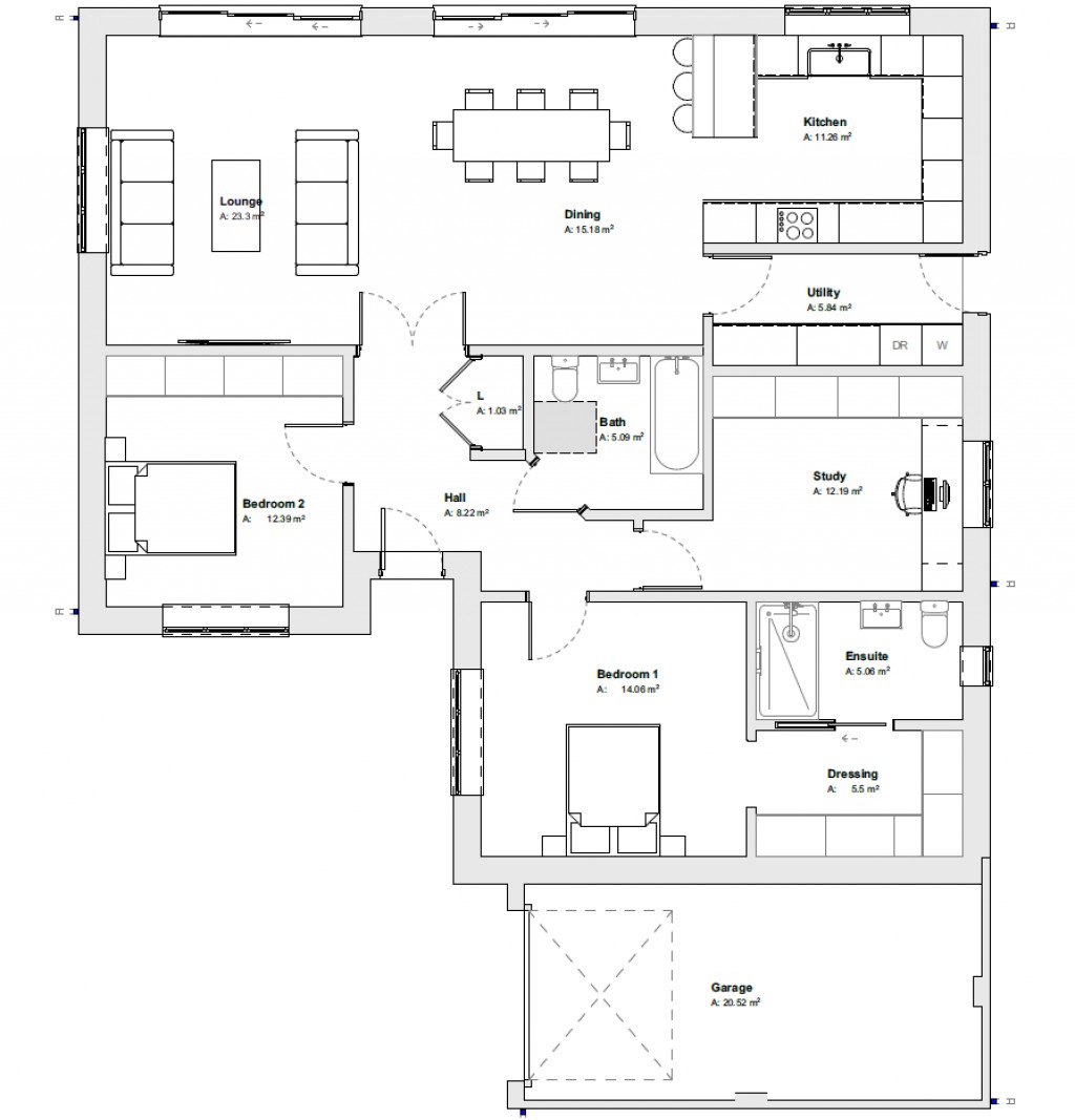
The land benefits from full planning permission for a spacious detached 2/3 bedroom bungalow extending to approximately 139.64 sq m (1,503 sq ft), offering the chance to create a thoughtfully designed home in a convenient village setting.

The approved plans provide well-balanced, single-storey accommodation with a natural flow throughout. The layout includes a generous open-plan kitchen/dining area/ living room, and a flexible third bedroom or study depending on requirements. The principal bedroom (Bedroom 1) benefits from its own en-suite shower room, with a further double bedroom served by a family bathroom.

Set within a plot of around 0.17 acres, there is space for a private garden and outdoor seating areas, as well as a garage and off-road parking.

Crossways itself offers everyday amenities and good transport connections, while Dorchester provides a wider range of shopping, dining, and leisure facilities just a short drive away.

Planning documentation is available on request. A rare opportunity to secure a ready-to-build plot in a desirable Dorset village location.

Floorplans For Warmwell Road, Crossways, DT2
Arrange a viewing for Warmwell Road, Crossways, DT2

For further details on this property please call us on:
01425 478719

Arrange Viewing

Share this property